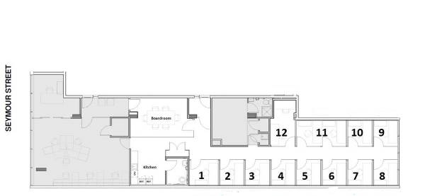
High End Furnished Window Office - Available NOW -(1-2 Person) -...
If you'd like a faster response to your inquiry, please email us your mobile number and we will text or call you. Be the first to rent a private office in our brand new Yaletown space at 997 Seymour...